PEDAGOGY FOR NATURE INSPIRED DESIGNS IN ARCHITECTURE
2016
Sign up for access to the world's latest research
Abstract
This paper offers a walk through our journey towards teaching how to accomplish designs inspired from nature, to students of architecture. The first portion of the paper gives a brief on the relationship of Nature and Architecture, constant friction between them and ultimately how can architects derive solutions for resolving complexities of architecture by an in depth Study of Mother Nature. The second portion tells how we made each of our students pursue the Study of a Selected Natural Item and then took them by a surprise when we instructed them to combine the Study with their Studio Project by designing the project being inspired from the Natural Item. The last portion of the paper gives an account of the lessons learnt by the students from the said study and design project.
Key takeaways
AI
AI
- Nature offers a model for innovative architectural design, enhancing sustainability and resolving complexities.
- The pedagogy emphasizes the importance of imagination over rote learning in architectural education.
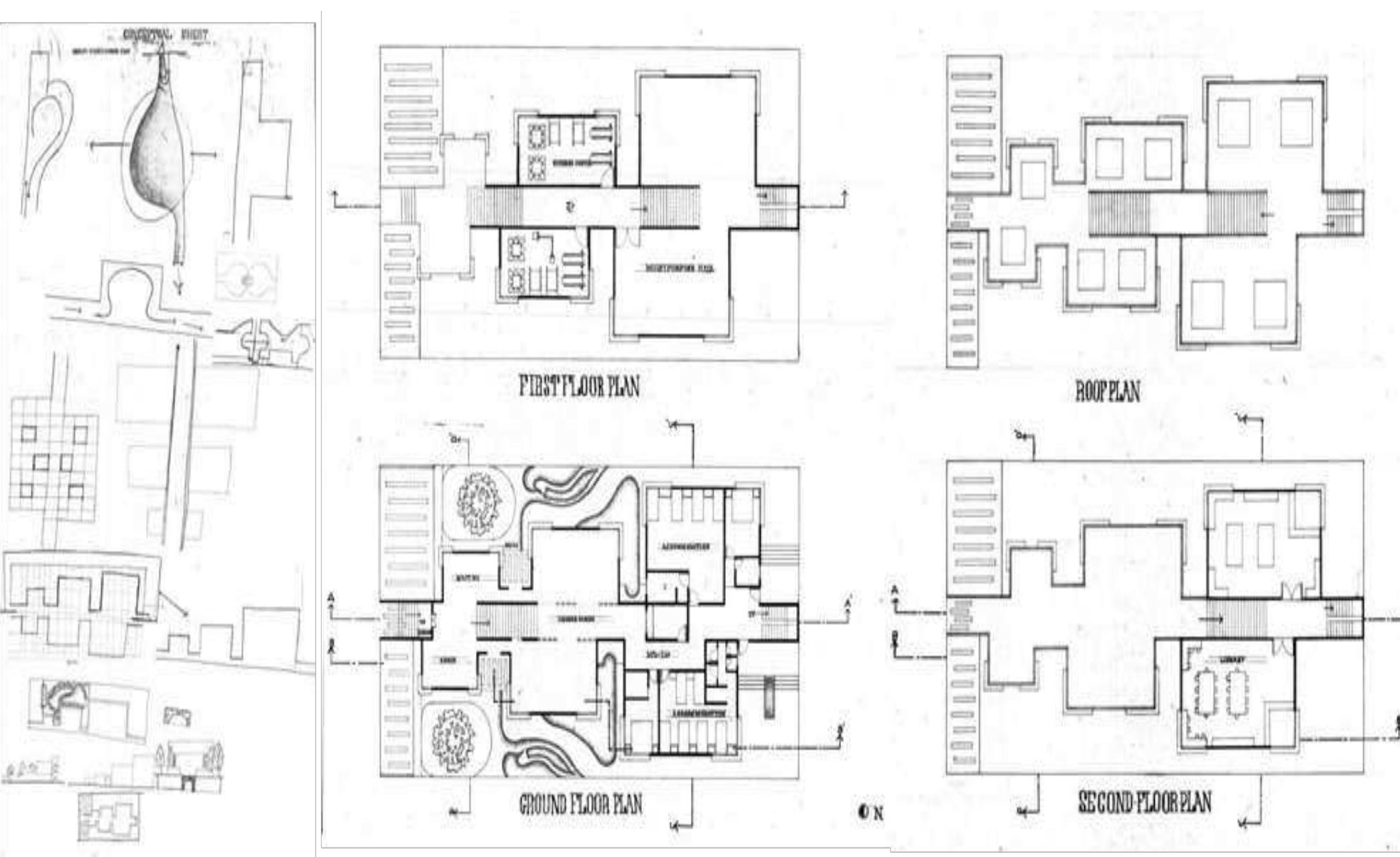
- Students engaged in a dual exercise: studying a natural item and applying insights to design projects.
- Natural items chosen by students included diverse examples like lemons, nests, and mushrooms for design inspiration.
- Biomimicry and Organic Architecture serve as foundational concepts in integrating nature into architectural practices.







Related papers
From the beginning of creation, human being was surrounded by nature.
Civil Engineering and Architecture, 2018
The systems, processes, and organisms optimized for the evolution of nature over several hundred million years have helped designers and architects seeking improved and innovative solutions. Inspired by the shape and function of nature, some architects have created great architectures by finding and applying new design sources from nature's elements. The beautiful and mysterious nature landscape surrounding us not only gives us a new appearance for the four seasons, but also provides the source of new ideas for human. When looking at nature elements such as trees, flowers, animals, and ocean organisms, architects can find unusual perspectives, visually interesting ideas, special structures, creative details and innovative mechanisms. Most modern cities are full of buildings like the shape of supermarkets and boxes, if possible, architects should try to satisfy human emotions with beautiful scenery and natural closeness through environmental architecture. When planning for future cities and constructing new buildings, how to satisfy our yearning for a harmonious interaction with nature, and how the historic characteristics of buildings are shown to be presence. All of these are related to our fundamental human feelings and emotions, can improve holistic interrelationships between buildings and nature for human life. Nature-inspired biomimicry is a way of observing the natural world to find design solutions that may enable us to create the concepts of new building design with sustainable and healthy. This study is to analyze what are nature inspirations for the visual and conception building designs and what are the characteristic of innovative designs and technologies inspired by nature.
Despite the present day interest in learning from Nature for sustainable design, attempts that delineate principles of Nature and engage the students in employing them in design activities is hard to come by. In addressing this issue, the first author offered an experimental design studio at the Department of Architecture of the University of Moratuwa, Sri Lanka titled 'Nature Studies' focused on investigating natural phenomena and employing them in understanding the fundamentals of architectural design. This paper presents the insights gained and discusses the methodologies adopted in research and teaching the studio. It offers a critical reflection on the architectural principles that can be delineated from Nature and argues that what ecologically sustainable design (ESD) requires are these fundamental principles. It demonstrates that architecture students can benefit from observing Nature both intuitively and systematically and argues for engaging them to develop an approach to architecture based on emulating Nature. Through a number of students' projects, it demonstrates the effectiveness of this teaching approach and articulates the principles that can be delineated from Nature in conceptualizing forms and compositions in architecture.
In today's scenario design with nature is no more in choice, it has become a necessity. Green spaces are declining day by day. So there is an urgent need of either to insert green spaces which are almost impossible in the concrete jungle of any urban area; or to install green facades in the buildings. Designing with nature doesn't only imply with the green facades but also including greenery into the interiors. To look iconic, a building must have either an exceptional form or a good planned landscape around it. Because there are rare buildings in the world which look attracting even without landscape visage. Earlier people use to have large homes with courtyard planning. Trees used to be planted in the courtyard for shade and for lowering the temperature in summers. As the time changes, with the came of industrialization and urbanization, the planning of homes completely changed. If we talk about the old unplanned cities (Jodhpur, Amritsar, Ludhiana, etc.), houses and other...
Alberto T. Estévez, “Sustainable Nature-Inspired Architecture”, in David S-K. Ting and Jacqueline A. Stagner (editors), Sustainable Engineering Technologies and Architectures, AIP Publishing, Melville, NY (USA), 2021, pp. 4-1 – 4-24., 2021
It is of the utmost importance, crucial, and urgent that we achieve planetary sustainability before it is too late. This is already commonly agreed. Therefore, each one, from their own field of action and life, must strive to achieve it. All of our individual acts make a difference, whether to facilitate sustainability or hinder it. In today's world, with its growing population, and with the same limited number of resources as from its origins, only the sum of all the members of society can somehow solve such an immense problem, that has now grown to be our highest obstacle that will sweep away and block out our near future. Thus, and particularly for us as architects, it is our competence and responsibility to resolve the sustainability in this plot that we have been entrusted: the architecture. Thus, offering a search field for a solution to everyone, how do we propose a sustainable architectural design? Well, let's look around us, at nature, an infinite quarry of lessons in sustainability and efficacy, an eternal mirror of inspiration for architecture. And not just inspiration, but above all, learning, which is what we really need. However, if each one did not apply the same solution method in their field and their lifestyle, it would be completely useless to propose sustainable architectural solutions. The current situation is unprecedented as the whole of humanity has never had to face something of this magnitude. It is as if the last intelligence test is being presented to humanity: are you intelligent enough to solve this problem? Well, if not, you no longer deserve to live on this Earth, which is actually a gift with the potential to be paradise, as soon as we know how to do it well. This is in summary the ideas to which the pages that follow refer. And to help understand these questions, the text will follow a path through topics such as Gaudí's ideas and works, the efficiency, the bio-learning, the self-sufficiency of nature, and other specific lessons that can be extracted from nature in order to be applied to architecture and to human life itself. (For a better and more clear conceptual foundation, from the beginning it should be stated that what follows is the articulation of a view of sustainability which contains marked normative and aesthetic elements, interwoven with conceptual interpretations of nature. The reader must be warned about what to expect: not a sober compilation of cases and examples but a passionate plea in favor of biolearning, Gaudi's work and biodigital architecture. It is not a compilation of specific scientific recommendations but a proposal of a specific approach to sustainable architecture, illustrated with relevant and elegant examples). 1. Sustainability? (First, acknowledge that there is not an established and operational definition of sustainability. It must be emphasized that defining sustainability is a difficult task that necessarily implies a normative aspect, which contains both ethical and aesthetic choices.
Students' works in Environmental Design Project 2 (EDP2) course which focuses on creativity and functional formation were analysed in this study. This study deals with the experiences of the 2nd-year landscape architecture students in the environmental design project course in regard to developing design and creativity skills and morphological efforts. The landscape architecture education can be defined as decision-making, designing spaces and organizing human activities and in Environmental design studios these are addressed as a whole. For this reason, " Environmental design studios " make up the most dynamic milieu of the landscape architecture education. These are courses that synthesize problem-solving skills built on the information and creativity obtained from other courses. Thus, students are expected both to come up with problem-solving suggestions with their knowledge and use their creative capacities in these suggestions within the scope of the course. Consequently, students are expected to produce creative designs suitable for the objective of the courses. However, the studies on how students perform these tasks in the landscape architecture education are quite limited. In this study, an approach that will develop the creativity of the students was investigated, and it was aimed to share the experiences on this subject.
Ecology and the Environment, 2008
Sustainable design is a complex and elusive thing to define, to design, to measure. A fully sustainable architecture would be one constructed within a fully sustainable culture, a culture within which all inputs and outputs are considered, designed. To move to a sustainable design and building practice in Western culture requires a major paradigm shift: it requires that we rethink our cultural habits from first principles; that we re-conceive the very notion of what buildings and cities are, rethinking them as generative, as active sites of production rather than as inert objects. This requires a re-location from traditional Western notions of building as permanent and static, towards building as organism, plant or landscape, as active and regenerative agent changing under inhabitation and in response to diurnal and seasonal shifts. Such a move requires a destabilising of the Western model of separate disciplines of urban design, architecture, landscape architecture, and interior design in favour of modes of thinking and making which move fluidly across all of these contiguous disciplinary territories. This paper explores Western and Oceanic notions of culture and nature, it tracks how cultural understandings are made manifest within built fabric. In doing so the paper offers an opportunity to rethink dominant Western models of space making, to move into a field of theorised practice in which culture and nature, building and landscape are interspersed and contiguous. Such architectural landscapes offer the potential to be regenerative habitats, artificial landscapes that generate food and energy; collect and filter water; remediate waste into new resources; offer native habitat to local fauna and flora; and create interior habitats that are strongly connected to the natural environment.
Journal of Civil Engineering and Architecture, 2019
This paper analyses what is the concept of nature inspiration in relation to the innovative design of buildings, and the design characteristics of innovative design as well as the harmonious interactions of the past and the future in urban regeneration. This is with the aim of determining how to acquire inspirations from nature, and how to subsequently apply the visual or conceptual nature-inspired designs. Such nature-inspired designs seek to exploit the new concepts of biophilic design, such as bio-eco-friendly sustainable processes, creative designs, and systems which can be used to improve the urban environment. The goal of this research is to uncover out ways by which to apply new ideas inspired by nature for an innovative building design.
Procedia Environmental Sciences, 2016
Concept is on the most important and primary elements during the design process. Through the history, nature has been always a source of inspiration for the human begin in different aspects of their life. Architecture interiors as one of the remarkable features in every society cannot be separated from nature. Nowadays architects and interior designers are constructing buildings without having a specific target or goal which decreases the value of the buildings. Various designers have been using concepts inspired from nature but still there are some missing parts in one of their forms, function, or structure. Therefore, the best solution for the architects and designers to increase the optimization in their design works is looking at the nature in every aspect deeper and try to apply them in their conceptual design of their project which is the heart of the design process while other architects have neglected concepts of nature despite that the surrounding environment and nature always influences human perception. The aim of this research is to understand the relationship between nature and human perception and the role that nature plays in architectural interiors to achieve buildings integrated with the surrounding environment. Also it draws attention of architects to nature and inspiration from nature in different perspectives. This paper presents projects having different concepts in architectural and interior design to make guidelines for designing buildings integrated with nature through example analysis. This paper concludes the importance of making a complete integration between the building exterior, interior and the surrounding nature by using a clear natural concept from the surrounding environment to be solving the design problems.

Loading Preview
Sorry, preview is currently unavailable. You can download the paper by clicking the button above.